|
<< Klicken Sie, um das Inhaltsverzeichnis anzuzeigen >> Navigieren: Möglichkeiten Überblick > Vermessung der 2D-Zeichnungen |
CADEditorX-Benutzeroberfläche erlaubt den Abstand zwischen zwei Punkten, die Fläche und das Perimeter zu messen. Es gibt die Möglichkeit, den Skalierfaktor für die Abmessungen schnell und anschaulich einzustellen. Die Ergebnisse der Abmessungen werden im Panel Maß angezeigt und in der Geschichte der Kommandozeile abgeschrieben. Mehr über die Abmessung-Werkzeuge: Maß-Werkzeuge.
Wie arbeitet es?
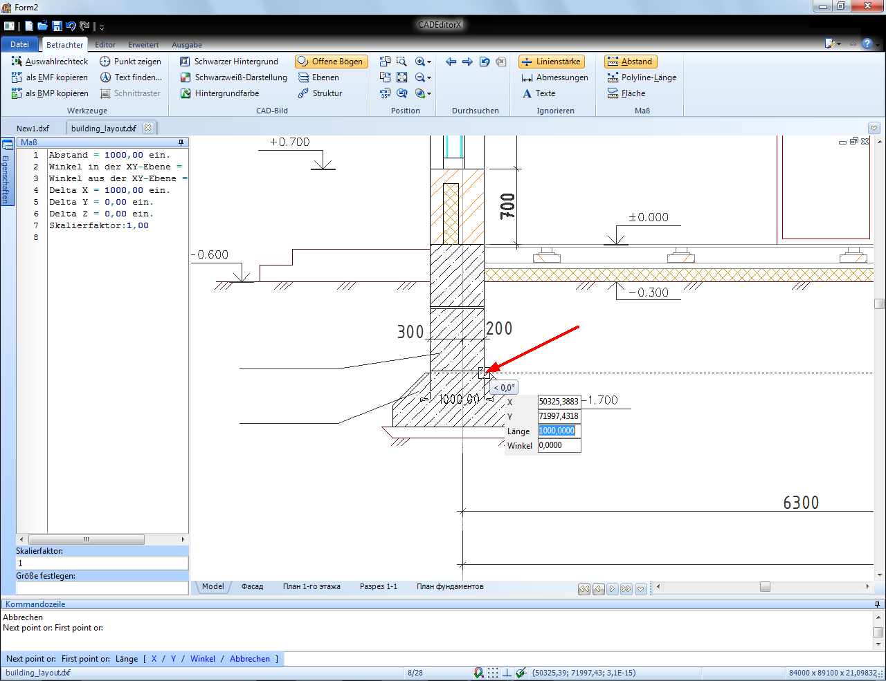
Zum Beispiel, es ist nötig, die abgängigen Maße mit dem Maßstab, in dem die Zeichnung gemacht wird, zu messen. Es ist bequem die Funktion "Größe festlegen" zu benutzen. Um den Maßstab auszurechnen, soll man erstens den bekannten Abstand messen wie es auf dem Bild gezeigt ist:

Bild 4. Messung des bekannten Abstands, den Maßstab auszurechnen
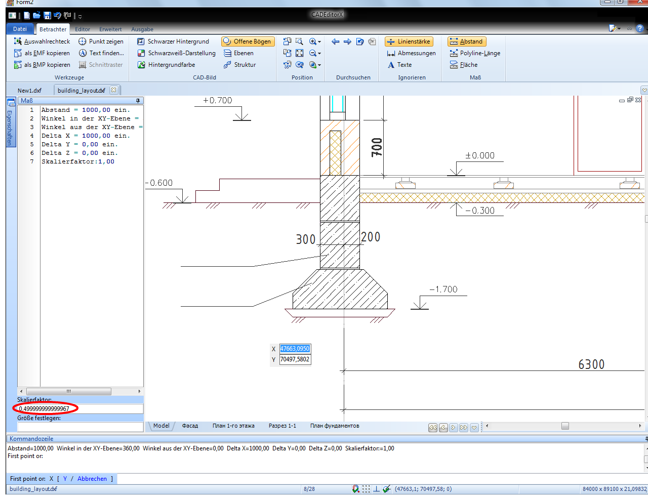
Dann geben Sie den Istwert "500" in das Feld Größe festlegen ein und drücken Sie die Eingabetaste. Der Wert des Skalierfaktors wird nachgerechnet und in den weiteren Abmessungen in Betracht gezogen werden..

Bild 5. Eingabe des Istwertes für die Umrechnung des Skalierfaktors
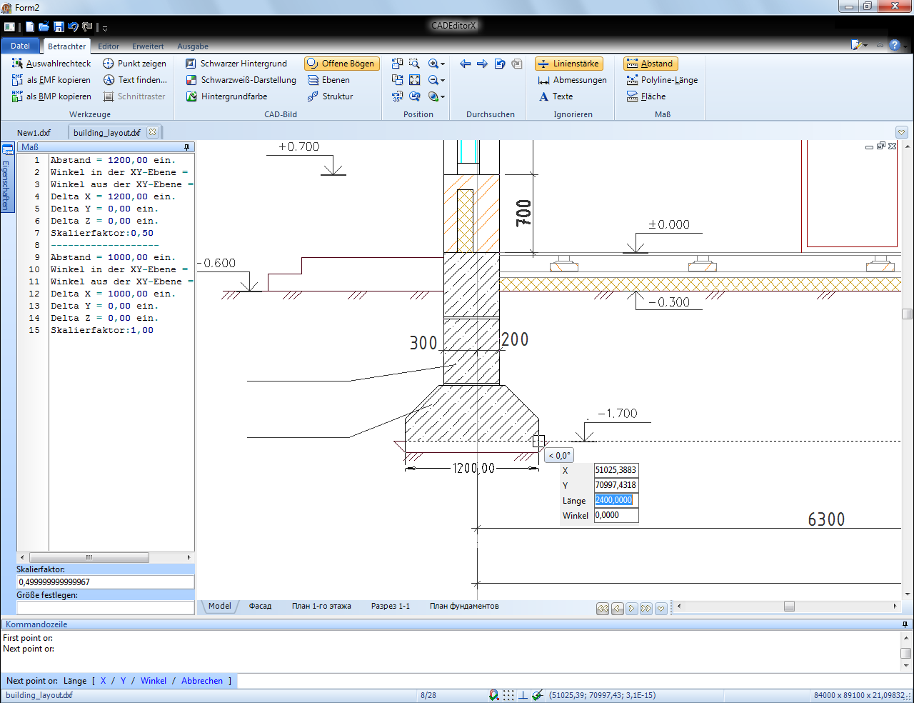
Messen Sie die Fundamentsohle.

Bild 6. Messung der Zeichnung mit ausgerechnetem Skalierfaktor
Wechseln zu CADEditorX